Продается коммерческая земля, 14,43 сот.

Площадь участка14,43 сот.
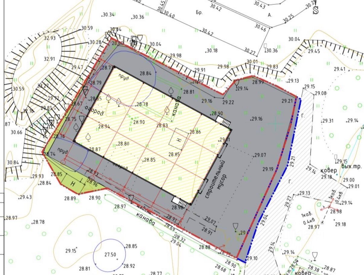
Продаем участок в черте города по ул. Новаторов 23, 24.43 сотки, собственность, кадастровый номер: 53:23:8312001:135, со стороны Лужского шоссе и с ул. Большой Санкт-Петербургской. Получен свежий градплан. Участок в территориальной зоне ОД1 ( многофункциональная общественно- деловая зона) для размещения универсального склада до 300 м2.
lock

Войдите или зарегистрируйтесь
для просмотра информации

Просматривайте условия сделки и всю информацию об объекте
Сохраняйте фильтры в поиске и не вводите заново
Доступ к избранному с любого устройства
Неограниченное добавление в избранное
Позвоните автору
Вам ответят на все вопросы
Остались вопросы по объявлению?
Позвоните владельцу объявления и уточните необходимую информацию.
  • Инфраструктура
  • Похожие рядом
Помощь надёжных риелторов
Риелтор партнёр Циан поможет купить или продать любую недвижимость
  • Документы проверены
  • 5 лет 11 месяцев на Циане
  • 31 объявление
  • 5 800 000 ₽
    76 794 $
    65 699
    Цена за сотку
    401 941 ₽
    Налог
    УСН
    РиелторОльга Парфенова
    Документы проверены